Así es como debería ser un alojamiento ideal para estudiantes
Categorias: Diseño y Arquitectura
Por Pictolic https://mail.pictolic.com/es/article/as-es-como-debera-ser-un-alojamiento-ideal-para-estudiantes.html¡Así debería ser el alojamiento ideal para estudiantes! Los arquitectos Agnieszka Ovsyany y Adam Verczynski convirtieron un antiguo apartamento con una superficie de 83 metros cuadrados en un dormitorio para estudiantes.
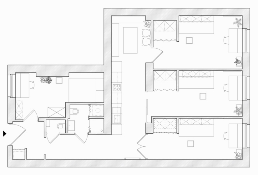
El apartamento, que se encuentra en un edificio de la década de 1930 en el centro de Poznan, recibió una nueva vida: los arquitectos lo dividieron en cuatro habitaciones separadas y un área común, que tiene una cocina, un comedor y dos baños. Ahora este alojamiento es ideal para estudiantes que deciden alquilar un apartamento juntos.

Al desarrollar el plan del futuro apartamento, se tuvieron en cuenta las necesidades de los estudiantes modernos, pero al mismo tiempo, los arquitectos no ignoraron el valor histórico del edificio. Han conservado los elementos originales del antiguo apartamento: puertas, ventanas y suelos de madera. La paleta interior está diseñada en tonos blancos y grises, con pequeños toques de colores brillantes. En general, la vivienda es un equilibrio perfecto de estilo y funcionalidad.

La primera habitación de estudiantes.

La puerta de la segunda sala de estudiantes, frente a la cocina común.

La tercera sala de estudiantes.

Espacio de cocina común.

Lavabo compacto en un baño pequeño. En total, el apartamento tiene dos baños: uno grande y otro pequeño, en el que solo se instalan un lavabo y un inodoro.

Cada habitación está numerada.

Pasillo.

Baño grande.

Un detalle del escritorio cerca del radiador.

Apartamento plan.

Axonometría.

Palabras clave: Interior | Apartamento | Polonia | Estudiantes
Publicar artículo de noticiasArtículos Recientes
En noviembre de 69 BC, que nació de Cleopatra, la última Reina de Egipto de la dinastía macedónica de los Ptolomeos. Cleopatra, ...
Las explosiones de baterías de teléfonos inteligentes y los cortocircuitos en los enchufes ya no se convierten en una sensación, ...
Artículos relacionados
Sorprendentemente, muchas cosas bastante ordinarias tienen nombres que son inusuales para nuestros oídos, pero al mismo tiempo ...
En este artículo, le diremos cómo puede decorar una habitación con sus propias manos con la ayuda de treinta ideas de ...
Incluso en pequeños apartamentos y casas pueden encontrar una gran cantidad de áreas funcionales, y con su ayuda es ideal para ...

Se cree que la aparición de las canas — es un signo de envejecimiento, la extinción gradual del organismo. Muchos asocian ...