How small smart home Cube2 for 52 thousand dollars
Categories: Design and Architecture | World
By Pictolic https://mail.pictolic.com/article/how-small-smart-home-cube2-for-52-thousand-dollars.htmlSmart home Cube2 from the company Nestron is not too expensive and comes in finished form, with furniture and all the amenities: come and live! The interior of the home is so well laid out, which is 25 square meters here can live 4 people, without interfering with each other.

It looks like smart home Cube 2 from the company Nestron. Housing with an area of 25 sqm is being sold finished with all the interior and even furniture. The cost of 52,000 dollars, that is about 3.5 million rubles. Despite the small area, it is designed so intelligently that it can live four people, without interfering with each other.

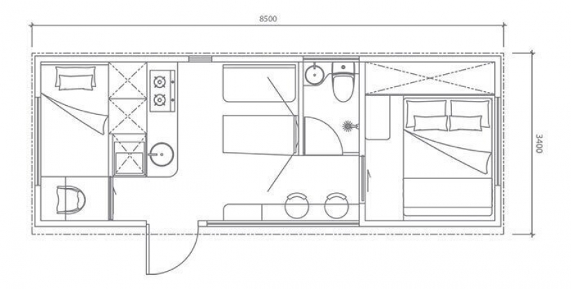
It looks like the internal plan of the house.
The house comes completely ready to move in: install and call in!

In a small area fit living room, kitchen, bedroom, bathroom and even a bar.

Thanks to an ingenious arrangement, the effective area of the smart home is 15% more than conventional housing.

Windows are strategically placed to not only to provide daylight, but also to the area of the home visually look bigger.
Built-in furniture is also included in the price of the home.

Built-in furniture includes dining table, sofa, bed (frame without mattress), wardrobe and shelving for the bedroom.

The house can accommodate a family of 4 people.

The house is equipped with artificial intelligence assistant that controls all built-in applications.

Assistant's name is Canny, and he is able to learn and adapt to the needs of the owners.
With the help of Canny you can turn on and off the light voice.

The house is certainly spacious and will not name.

Its precise area of 24,4 sq. m.

However, the internal structure of the house and intelligent management makes it simple to live in the family.
Keywords: Building | Invention | Layout | Usability
Post News ArticleRecent articles
It's high time to admit that this whole hipster idea has gone too far. The concept has become so popular that even restaurants have ...
There is a perception that people only use 10% of their brain potential. But the heroes of our review, apparently, found a way to ...
Related articles
There is a perception that people only use 10% of their brain potential. But the heroes of our review, apparently, found a way to ...
The invention of flying machines that allow people to travel into the Earth's atmosphere is a list of the greatest innovations of ...
We all sometimes there are days when it is boring. The series is no longer pleasing, the weather "bad", all your friends are busy ...

New Year's is a time to surprise and delight loved ones not only with gifts but also with a unique presentation of the holiday ...