Here's what an ideal student accommodation should look like
Categories: Design and Architecture
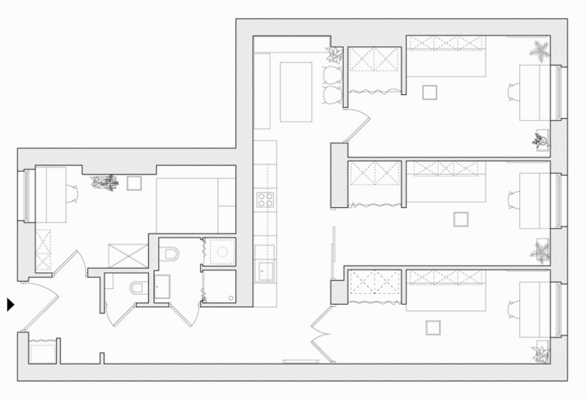
By Pictolic https://mail.pictolic.com/article/heres-what-an-ideal-student-accommodation-should-look-like.htmlThis is what the ideal student accommodation should look like! Architects Agnieszka Ovsyany and Adam Verczynski turned an old apartment with an area of 83 square meters into a student dormitory.
The apartment, which is located in a 1930s building in the center of Poznan, was breathed new life: the architects divided it into four separate rooms and a common area, which has a kitchen, a dining room and two bathrooms. Now this accommodation is ideal for students who decide to rent an apartment together.

When developing the plan of the future apartment, the needs of modern students were taken into account, but at the same time, the architects did not ignore the historical value of the building. They have preserved the original elements of the old apartment — doors, windows and wooden floors. The interior palette is designed in white and gray tones, with small splashes of bright colors. In general, housing is a perfect balance of style and functionality.

The first student room.

The door of the second student room, facing the common kitchen.

The third student room.

Common kitchen space.

Compact washbasin in a small bathroom. In total, the apartment has two bathrooms: a large and a small one, in which only a sink and a toilet are installed.

Each room is numbered.

Hallway.

Large bathroom.

A detail of the desktop near the radiator.

Apartment plan.

Axonometry.

Keywords: Interior | Apartment | Poland | Students
Post News ArticleRecent articles
Sometimes you see a tattoo on a person and think: "Why did he do it at all?". A familiar feeling? If you have never experienced it, ...
Taxi ride like a lottery — you never know if you will pull the winning ticket. Even the official services like Uber does not ...
Related articles
Surprisingly, many quite ordinary things have names that are unusual to our ears, but at the same time correct. You've probably ...
In this article, we will tell you how you can decorate a room with your own hands with the help of thirty classic and modern decor ...
Even in small apartments and homes can find a lot of functional areas, and with their help it is great to save space and ...

Finnish photographer Juha Tanhua has shot an unusual series of "space photos". Astrophotographic images of stars, galaxies and ...